Ta strona używa plików Cookie. Korzystając z tej strony zgadzasz się na umieszczenie tych plików na twoim urządzeniu

DOM SPOKOJNEJ STAROŚCI w Częstochowie

Projekt budowlany i wykonawczy dwóch budynków przeznaczonych na dom spokojnej starości(...)

Budynki użyteczności publicznej


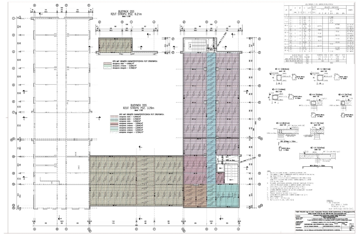
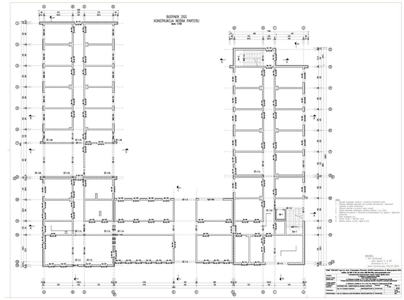
DOM SPOKOJNEJ STAROŚCI w Częstochowie - Projekt budowlany i wykonawczy dwóch budynków przeznaczonych na dom spokojnej starości (pow. użytkowa 1809,6 m2) oraz budynek z pokojami gościnnymi (pow. użytkowa 308,3 m2). Oba budynki zaprojektowano jako wolnostojące, jedno- i dwukondygnacyjne, w kształcie litery „U” oraz prostokąta (budynek z pokojami gościnnymi), niepodpiwniczone. Budynek główny wymiarach 52,0x48,5m i składający się z pięciu oddylatowanych od siebie części, natomiast budynek pomocniczy jednoczęściowy o wymiarach 13,0x30,0m. W części budynku głównego, dwukondygnacyjnego zaprojektowano dwie klatki schodowe oraz szyb windy osobowej. Układ ścian nośnych zaprojektowano jako dwukierunkowy oparty na żelbetowych płytach fundamentowych. Strop międzykondygnacyjny części dwupiętrowej, oraz stropodachy przewiązki budynku głównego oraz budynku z pokojami gościnnymi zaprojektowano z prefabrykowanych płyt kanałowych. Pozostałe dachy będa wykonane z prefabrykowanych dźwigarów drewnianych w układzie dwuspadowym.

data realizacji projektu: kwiecień 2015

Galeria zdjęć