Ta strona używa plików Cookie. Korzystając z tej strony zgadzasz się na umieszczenie tych plików na twoim urządzeniu

Budynek hali malarnii w Tarnowie

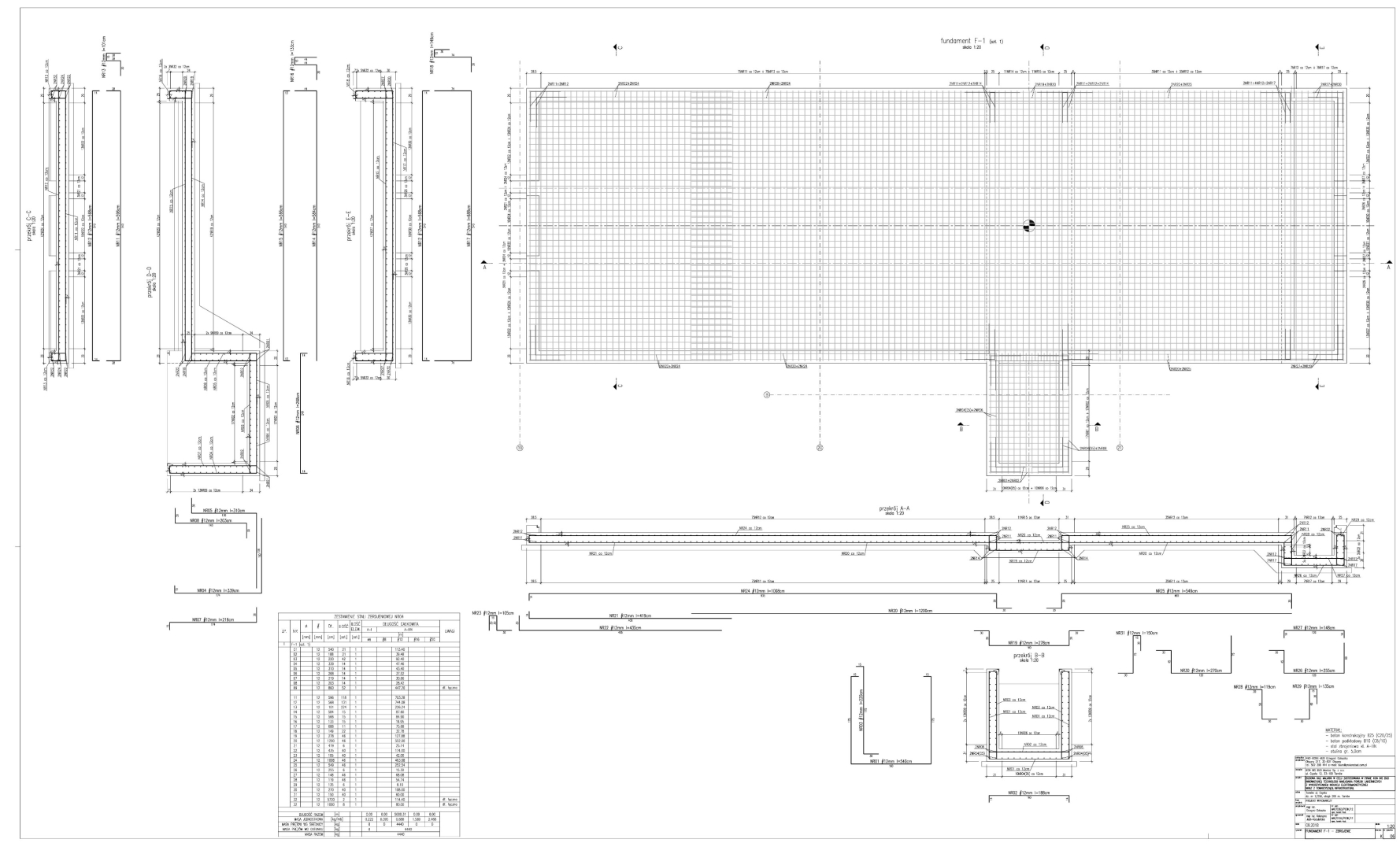
Projekt budowlany wraz uzyskaniem pozwolenia na budowę oraz wykonawczy hali malarni(...)

Obiekty przemysłowe


Galeria zdjęć